Trifamiliare in vendita

Torino, Via Chaberton - La Barca
€ 295.000
6 locali 6 locali
281 Mq 281 Mq
3 bagni 3 bagni

Trifamiliare in vendita

Torino, Via Chaberton - La Barca

Descrizione annuncio

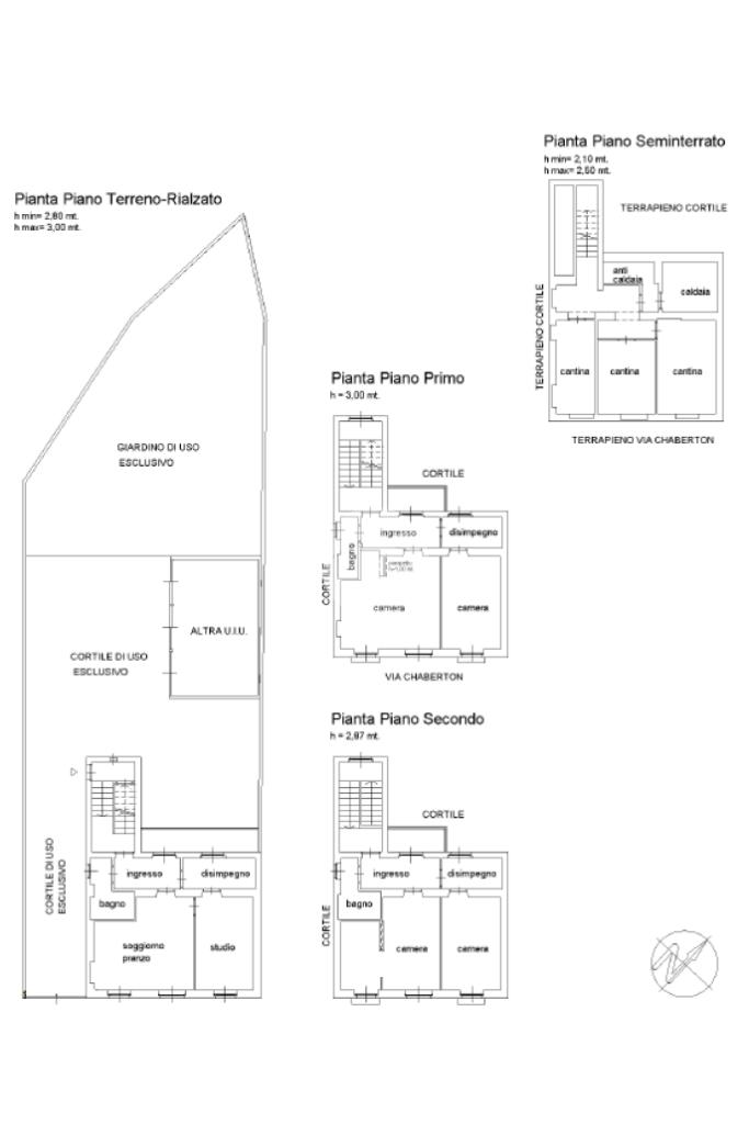
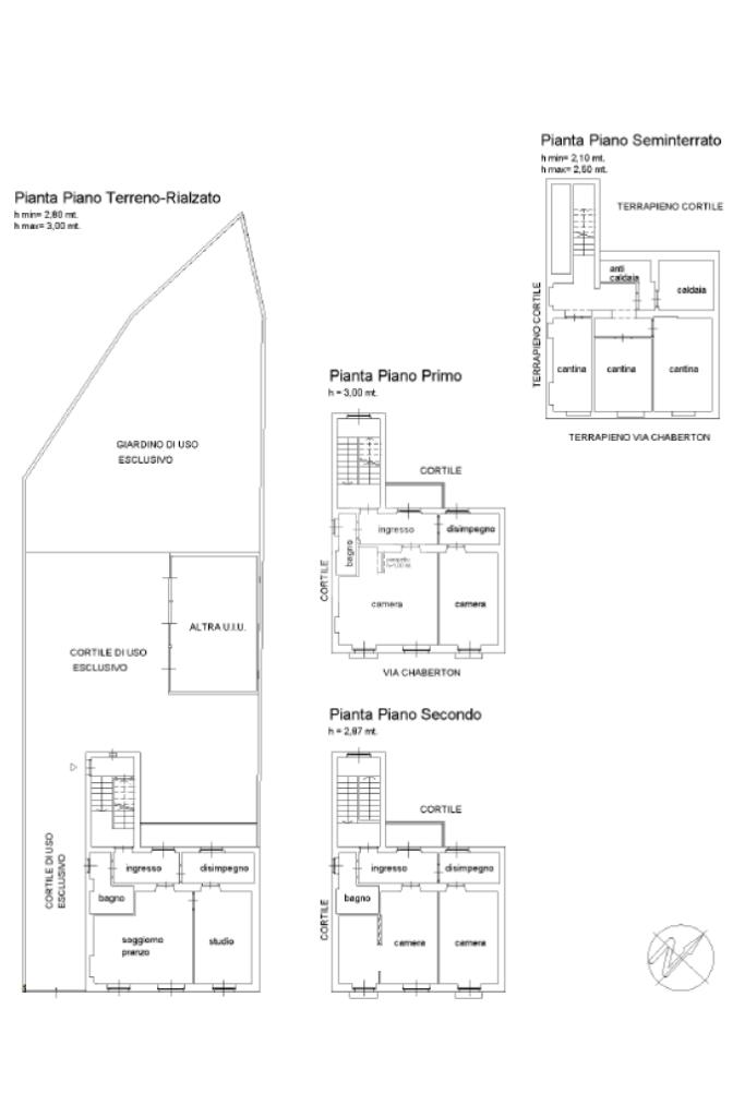
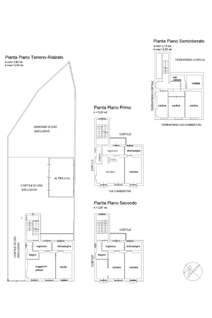
Situato in Via Chaberton, comoda ai principali servizi della parallela Strada Settimo, proponiamo in vendita ampia casa Trifamiliare.

L'ingresso indipendente dalla strada principale garantisce privacy e sicurezza. Gli interni sono stati recentemente ristrutturati nel 2020.

La casa è strutturata con ingresso su di un vano scale che conduce su ogni piano a un differente Bilocale.

Ogni appartamento, pur essendo parte di un'unità più grande, mantiene la propria indipendenza, con soggiorni e cucinotti che possono essere utilizzati singolarmente o integrati per creare un grande open space per quanto riguarda le zone giorno.

Gli appartamenti rispettivamente del primo e del secondo piano, sono entrambi provvisti di tre balconi, di cui due in facciata e uno più ampio interno.

Per quanto riguarda l'appartamento posto al piano rialzato è provvisto di un balcone affacciato sul cortile interno.

Le ampie finestre e la favorevole esposizione assicurano una luminosità naturale durante tutto il giorno, rendendo gli spazi interni ariosi e accoglienti.

La zona notte è contraddistinta da camere da letto matrimoniali, squadrate e facilmente arredabili.

Su ogni piano è presente un bagno finestrato con doccia.

Completano l'immobile un vano caldaia, quattro ampie cantine e un autorimessa con tre posti auto singoli.

Il riscaldamento è gestito da un'unica caldaia centralizzata e mediante termovalvole è possibile gestire i consumi per ogni piano e tutti gli infissi sono in PVC con doppi vetri.

Completano l'immobile un cortile e un giardino per una metratura totale di circa 200mq.

Mostra tutto

Nelle vicinanze

Trasporto pubblico Trasporto pubblico
stazione di Torino Stura
stazione di Torino Stura
2,3 Km
stazione di Torino Rebaudengo Fossata
stazione di Torino Rebaudengo Fossata
3,0 Km
Scotellaro
Scotellaro
1,7 Km
Ivrea
Ivrea
1,8 Km
Magra
Magra
170 m
Ricariche auto elettriche Ricariche auto elettriche
Bluetorino Piazza Derna
1,9 Km
EnelX EVA+ Mercatò San Mauro Torinese
2,2 Km
LIDL Torino Via Bologna
2,7 Km
Torino Outlet Village
3,0 Km
Scuole Scuole
Scuola Primaria "Giovanni Cena"
440 m
Scuola secondaria di I grado "Martiri del Martinetto"
440 m
Scuola secondaria di primo grado "Norberto Bobbio"-sede staccata
1,5 Km
Scuole
1,6 Km
Scuola primaria Giuseppe Cesare Abba
1,6 Km
Farmacia Farmacia
Sant'Agnese
380 m
Regio Parco
1,2 Km
Farmacia Novara
1,3 Km
Cesano
1,5 Km
Balossino
1,5 Km
Ospedali Ospedali
Ospedale San Giovanni Bosco
1,9 Km
Supermercati Supermercati
IperGross
300 m
LD Market
450 m
è il mio mercato
710 m
Offertissima
1,2 Km
Mercatò
1,3 Km
Negozi Negozi
Specialità siciliane
90 m
Adri market
290 m
Negozi
340 m
Carrefour Express
460 m
Gastronomia
1,3 Km
Bar Bar
Bar Taty
160 m
Fantasia bar
280 m
Bar del Villaggio
1,6 Km
Degusto
1,9 Km
Biliardomania
1,9 Km
Ristoranti Ristoranti
Officina del Gusto
90 m
Mezcal
170 m
Ristoranti
190 m
La Deliziosa
230 m
Ristorante Pizzeria Mirò
480 m
Mostra tutto

Caratteristiche

Rif.:
61117961
Piano:
3 di 3 (Piano su più livelli)
Box:
1
Posti auto:
3
Balconi:
4
Terrazzi:
1
Mostra tutto
Prezzo Prezzo
€ 295.000
Rata mutuo Rata mutuo
€ 1.355 / mese
Proponi il tuo prezzoProponi il tuo prezzo

Classe Energetica

F
F
F
F
F
F
F
F
F
EP globale non rinnovabile:
161.68 kW h/m² anno
EP globale rinnovabile:
13.78 kW h/m² anno
EP invernale del fabbricato:
EP estiva del fabbricato:
Anno di costruzione:
1926
Riscaldamento:
Autonomo
Tipo impianto:
A radiatori
Tipo alimentazione:
Metano

Ti interessa visionare l'immobile?

Fissa un appuntamento  Fissa un appuntamento

Richiedi informazioni

* Questi campi sono obbligatori

Calcola il tuo mutuo

Semplice e senza impegno
Anticipo

( % )
Mutuo

( % )

pochi semplici passi

inserisci i tuoi dati
Questionario completato
Grazie per aver richiesto un appuntamento senza impegno con un nostro Consulente del Credito e Assicurativo.

Hai inserito correttamente tutti i dati necessari e a breve riceverai una e-mail con un link da convalidare per inviare i tuoi dati.
Affiliato
Immobiliare San Mo' Sas
St.da di Settimo, 59 10156 Torino (TO)

Il nostro staff


  • Andrea Maiolo
    Affiliato

  • Andrea Ania
    Responsabile

  • Tommaso Ricucci
    Affiliato
St.da di Settimo, 59 10156 Torino (TO)
Zona: Barca Bertolla
Mostra su mappa
Orari: LUNEDI' - VENERDI' 9.00 - 12.30 / 14.30 - 20.00 SABATO 9.00 - 12.30 / 14.30 - 19.00 DOMENICA CHIUSO
Affiliato
Immobiliare San Mo' Sas
St.da di Settimo, 59 10156 Torino (TO)

2025 Tecnocasa Franchising S.p.A. - P. IVA 08365160152 - Via Monte Bianco 60/A 20089 Rozzano (MI). Ogni agenzia ha un proprio titolare ed è autonoma. Privacy policy | Policy utilizzo | Cookie policy